分集水器
上一个:定压补水装置 下一个:波纹节管换热器
详情介绍

定压补水装置是近年来出现的新型给水设备定压补水装置,由膨胀水罐、水泵、自动控制柜、管道、阀门、仪表等组成。本公司已系列化生产,该产品可以弥补低压供水不足,屋顶水箱或水塔。该系列用于居民住宅、宾馆饭店、医院等民用建筑和工业设施的生活、生产及消防系统上。定压补水装置亦被用于热水供应,热水采暖,小区集中供暖空调系统做落地膨胀水箱。

特点

1、密闭性能好:罐体为密封装置,气水接触少,水质不受污染。

2、结构紧凑、占地少:借助电脑三维设计,是简单地拼合,而且合理布置各组成部件,压缩占地面积。

3、美观、大方:可用生活、消防、采暖、及空调用的高位水塔,不影响建筑美观,降低建筑造价。

4、便于集中管理:该机组为一体化结构,免除用户因不同厂家产生的售后服务不一致的麻烦。

工作原理

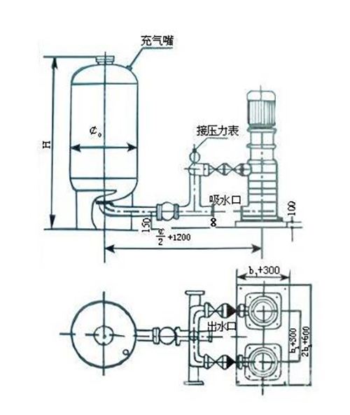
根据波义耳气体定律,质量的气体在温度下,压力与容积的乘积为常数。当水泵工作时,水送至给水管网的同时,多余的水进入气压水罐,水室扩大并将罐内的气体压缩,气室缩小,罐内的压力随之升高;压力升到高工作压力P2 时,电控柜切断水泵的电源,水泵停转,此时利用罐内被压缩气体的压力将罐内贮存的水送入给水管网,水室缩小,气室扩大,罐内压力也随之下降,当压力降低到 工作压力P1时,电控柜接通水泵电源,水泵重新启动,如此周而复始,不断运行,其工作原理见下图。

广州三化热工设备有限公司 版权所有
技术支持[东莞网站建设]